Please browse some examples of our previous work :
-
Small Pressure Vessel FEA
FEA study on vessel support brackets
Click to Enlarge -
Slide Title
Calculation sheet for nozzles in knuckle region of dished end
Button
Slide Title
Frame strength calculator
Button-
Prototype Energy Recovery System
Prototype energy recovery system layout - skid mounted including all pipework and vessels
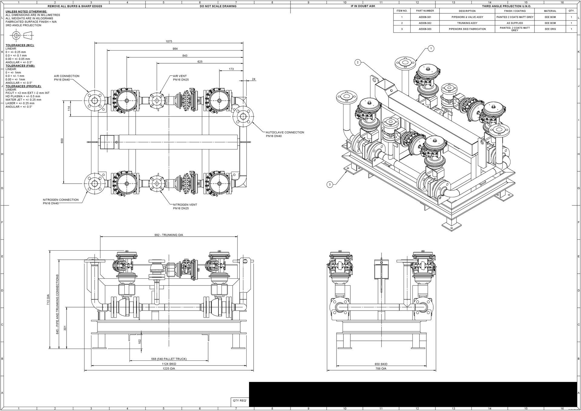
Button Air / Nitrogen Selection Skid
Design of a transportable skid to house the control system to regulate the flow of air and/or Nitrogen into an Autoclave
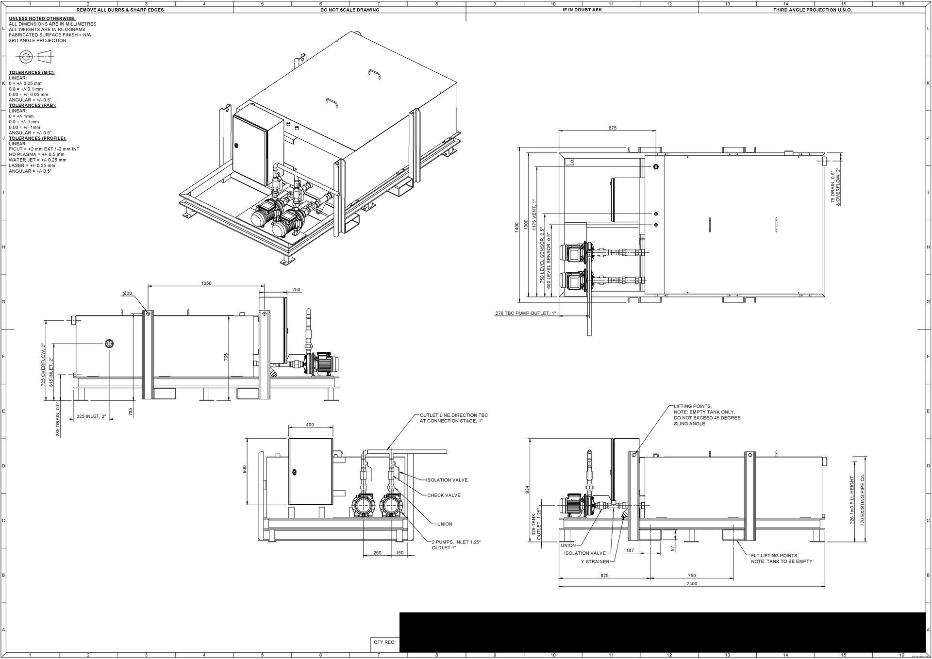
ButtonSkid Mounted Pumping Station
Pump skid to supply the cooling system inside an Autoclave.
Button
Site Layout
Full Autoclave site layout including all pipework, vac system, cooling.
Button-
Slide title
Analysis of Wind Turbine Mast Support
Button
